Мы объединились! Переходите на Циан: база больше, а продукты технологичнее
Приложение Циан
Личный кабинет
Сообщения
Избранное
  • Добавить объявление
  • Ипотека
  • Подбор риелтора
  • Журнал
  • Шаблоны документов
  • Продажа
  • Аренда
  • Новостройки
  • Коммерческая
  • Бизнес-центры
  • Дачи, участки
  • Земля
  • Гаражи

Аренда коммерческой недвижимости в Тольятти

137 объяв.
1/5
84 370 ₽ в месяц
Офисное помещение,  Буденного бульвар, 2
Автозаводский район
143 м² · 590 ₽ за м²
Уникальное предложение! Универсальное помещение, расположенное в центре города с прекрасной транспортной доступностью! Отдельный вход, первая линия, есть место для размещения рекламных баннеров. В помещении несколько комнат с разной площадью (от 12 до 40м), санузел, стойка администратора, помещение под склад. Сдается со всей мебелью. Прекрасно подходит под учебный центр, офис, производство и т.д. Все подробности и торг при просмотре.
1/10
35 000 ₽ в месяц
Производственное помещение,  40 лет Победы, 94б
Автозаводский район
70 м² · 500 ₽ за м²
Сдается помещение с крытой площадкой, огороженная забором. Производственно офисное помещение 70 квм
1/8
36 000 ₽ в месяц
Торговые площади,  Ленина, 92
Центральный район
35 м² · 1 028 ₽ за м²
РЫБНОЕ БОЙКОЕ МЕСТО! Предкассовая зона, в действующем ТОЦ ''Юность'' по адресу Тольятти, ул. Ленина, 92. Рядом с новым жилым комплексом на ул. Горького (Активно заселяются три новых дома на 300 квартир), а это потенциальные клиенты и УВЕЛИЧЕНИЕ ТРАФИКА В РАЗЫ! ОЖИВЛЕННОЕ МЕСТО (Магнит, Fix Price, промтовары, зоотовары и прочее), ВЫСОКИЙ ТРАФИК покупателей - ПЛОТНО ЗАСЕЛЕННЫЙ РАЙОН, СВОЯ ПАРКОВКА, остановки общественного транспорта. Оставьте свои контакты, чтобы получить презентацию по данному предложению.
1/10
50 000 ₽ в месяц
Универсальное помещение,  Лизы Чайкиной, 52
Комсомольский район
260 м² · 192 ₽ за м²
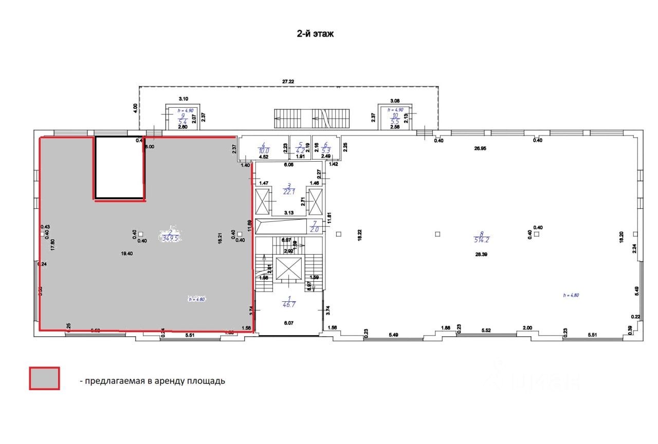
СДАЕТСЯ В АРЕНДУ ПОМЕЩЕНИЕ СВОБОДНОГО НАЗНАЧЕНИЯ, подвал Адрес: г. Тольятти, ул. Лизы Чайкиной д.52 Локация: - Плотный жилой массив. - Хороший пеший и автомобильный трафик . - Торговое окружение: ''Магнит'', ''Мегафон'', ''Кунеевский рынок'', Сбербанк Характеристики помещения: -Отдельный вход -Хорошие рекламные возможности - Общая площадь 260 кв.м -Комнаты площадью 72,2 кв.м, 34,5 кв.м, 105 кв.м и 47,9кв.м -Санузел -Высота потолков 3,7 м Стоимость аренды 1 кв.м. - 450 руб./мес. + коммуналка, свет, Стоимость аренды общая 117000 руб./мес. + коммуналка, свет. Помещение подойдет под торговое помещение, малое производство, склад. Есть возможность аренда малых площадей.
1/12
7 500 ₽ в месяц
Универсальное помещение,  Лизы Чайкиной, 59
Комсомольский район
30 м² · 250 ₽ за м²
Предлагаем в аренду помещение общей площадью 459 кв. м на 2 этаже в 4-этажном здании по адресу: г. Тольятти, ул. Л. Чайкиной, д. 59 Все коммуникации центральные, санузел на этаже. Кабинеты различной площади от 11 кв. м. Высокий пешеходный и автомобильный трафик. Рядом магазины, кафе, жилые дома, банки, учебные заведения, государственные учреждения, остановки общественного транспорта. Идеально под размещение офиса, фотостудии, дополнительных занятий, обслуживания населения, оказания услуг и многого другого. Ставка арендной платы 250 рублей с НДС 20% за 1 кв. м без учета электроэнергии, водопотребления, вывоза ТБО, уборки. Время и график доступа согласовываются индивидуально. Аренда от собственника — юридического лица ПАО ''Ростелеком''. Звоните! С удовольствием ответим на все Ваши вопросы.
1/5
52 500 ₽ в месяц
Универсальное помещение,  70 лет Октября, 54а
Автозаводский район
75 м² · 700 ₽ за м²
Предлагаю аренду помещения, 75 метров, состоит из 3х комнат: -1=42 метра, 3 окна, -2=17 метров, 1 окно, -3=11 метров, без окна. В густонаселенном районе. Расположено в жилом доме, на 1 этаже, с/у, свободной доступ.

Подбор риелтора

Риелтор поможет купить или продать любую недвижимость

Оставить заявку
1/5
450 000 ₽ в месяц
Офисное помещение,  Молодежный бульвар, 6
Центральный район
500 м² · 900 ₽ за м²
Помещение с высококачественным ремонтом, оборудованное по банковским стандартам, универсальный депозитарий с клиентскими ячейками, прит. -выт. вент-ией с функцией обогрева, кондиционирование, высота потолков 3 м, с/у. Отдельных вход. Панорамные окна по всему периметру здания и стеклянный купол обеспечивают хорошую освещенность. Скоростной интернет. На 1-м этаже супермаркет Магнит. Прекрасная обзорность. Большие площади под рекламу. Рядом рег. палата, кадастровая палата, мэрия, торг. центры, остановка общественного транспорта .
1/6
97 600 ₽ в месяц
Универсальное помещение,  Базовая, 32
Центральный район
488 м² · 200 ₽ за м²
Сдаётся комфортное помещение под производство, склад. Полы плитка керамогранит. Ворота въездные 3 м х 4 м, вьезжает бортовой Камаз, Газель. В тч тепло , летом темперетура не поднимается выше +25*. Отличная логистика.
1/5
4 500 ₽ в месяц
Офисное помещение,  Офицерская, 15
Автозаводский район
9 м² · 468 ₽ за м²
Офис с мебелью 9.6м.кв Сдаю на срок от 3 месяцев. Задаток за 3 мес. На меньший срок договор не заключаю!
1/13
8 500 ₽ в месяц
Универсальное помещение,  Карбышева, 17
Центральный район
17 м² · 500 ₽ за м²
Сдаются площади свободного назначения в Центральном районе. Помещение кабинетного типа: 63 и 65 кв.м на втором этаже Свободное помещение 80 кв.м на первом этаже (имеется запасной выход со двора здания) Помещение гаражного типа (вход со двора) площадью 19 кв.м. По желанию клиента можно заменить гаражные ворота на двери -отдельный вход доступ 24/7 -центральное отопление, канализация, горячая вода, 2 сан.узла на втором этаже и один на первом -хорошее расположение: густонаселенный район, удобные подъездные пути, место для парковки. Рядом магазины, ТЦ, баня, 5 минут до остановки Отлично подойдет для индустрии красоты, офиса, швейной мастерской, интернет магазина -Стоимость аренды 500 м2 - ВСЕ ВКЛЮЧЕНО!!!! (без дополнительных платежей!) -Есть возможность долгосрочной аренды всей площади второго этажа --- 250 м2. - Рассматриваем предложения по покупке данного помещения - цена 8900000 На все дополнительные вопросы отвечу по телефону. Ждем Ваших звонков
1/8
135 600 ₽ в месяц
Складское помещение,  Тупиковый проезд, 4 ст3
Центральный район
452 м² · 300 ₽ за м²
Предлагаю в аренду склад, 452 метра, 28 на 25 метров, высота в нижней точки 4 метра. Въездные ворота, газель войдет спокойно. Есть входная дверь. Электричество, отопление-вулкан, полы бетонные, система пожаротушения-сухотруб. Также , при необходимости, есть офисные помещения, не входят в стоимость аренды склада.
1/16
125 000 ₽ в месяц
Универсальное помещение,  Карбышева, 17
Центральный район
250 м² · 500 ₽ за м²
Сдается помещение свободного назначения в Центральном районе, общей площадью 250 м2. Помещение кабинетного типа: 9 кабинетов площадью от 8 до 19 м2. (кабинет руководителя, касса, кабинет по работе с клиентами, подсобные помещения) -отдельный вход -доступ 24/7 -центральное отопление, канализация, горячая вода, 2 сан.узла -хорошее расположение: густонаселенный район, удобные подъездные пути, место для парковки. Рядом магазины, ТЦ, 5 минут до остановки Отлично подойдет для колл-центра, хостела -Стоимость аренды 500 м2 - ВСЕ ВКЛЮЧЕНО!!!! (без дополнительных платежей!) -Возможна субаренда Рассматриваем предложения по покупке данного помещения - цена 8900000 А так же предлагаем к сдаче в аренду помещения на цокольном этаже с отдельным входом
1/3
175 000 ₽ в месяц
Складское помещение,  Обводное шоссе, 72/1
Центральный район
350 м² · 500 ₽ за м²
Тёплое помещение 350 кв.м. под Склад. Высота ворот 2.5 метра, ширина 4 метра. Первая линия обводного шоссе, Охраняемая территория. В цену всё включено.
1/20
25 000 ₽ в месяц
Офисное помещение,  Карла Маркса, 77
Центральный район
42 м² · 585 ₽ за м²
сдается офис 42.7 это 2 комнаты кухня и туалет и комната 16 метров
1/12
40 000 ₽ в месяц
Складское помещение,  Ларина, 187/4
Центральный район
400 м² · 100 ₽ за м²
Сдам складское помещение ангарного типа 400м2 не отапливаемый на огороженной территорией по адресу: Центральный район, Ларина 187, строение 4. Характеристики помещение: стены керамзитобетонные блоки, пол ровный бетон, высота до потолка 7м, до конструкций 6м.Удобная логистика имеется железнодорожная ветка, ворота 3*4м, имеется кран-балка, асфальтированная площадка под большегрузы 500м2, Коммуникации: выделенная мощность 100кВт, водоснабжение (центральное). Стоимость 175 руб./м2, коммунальные платежи оплачиваются отдельно. ЗВОНИТЕ, НА ВСЕ ВОПРОСЫ ОТВЕТИМ!
1/13
659 100 ₽ в месяц
Универсальное помещение,  Ленинградская, 68в
Центральный район
507 м² · 1 300 ₽ за м²
Предлагаю аренду под ресторан в центре города Тольятти. 3 этаж - 507 метров, из которых 346 метров теплый контур и 160,8 метров терраса с панорамным видом на исторический центр города. Высота потолков 3.5 метров. Большая парковка, лифт, панорамные окна, эвако выход.
1/8
480 000 ₽ в месяц
Универсальное помещение,  Ленинградская, 68в
Центральный район
320 м² · 1 500 ₽ за м²
Предлагаю аренду в БЦ Родина. 2 этаж - 320 метров (возможна нарезка площади на 60, 61 и 143 метров). Высокие потолки 4.8 метра. Большая парковка, панорамные окна, лифт, эвако выход. Хорошая транспортная доступность.
1/6
11 200 ₽ в месяц
Торговые площади,  Фрунзе, 23
Автозаводский район
14 м² · 800 ₽ за м²
Арт. 106655846 Аренда торговой площади 12.4 м2 в ТЦ Сорренто, г. Тольятти Расположение: Центр густонаселенного района города Тольятти, пересечение улиц Фрунзе и бульвар Будённого. Расположено на втором этаже популярного торгового центра, привлекающего высокий поток покупателей ежедневно. Отличная транспортная доступность, развитая городская инфраструктура, включая остановочные пункты общественного транспорта. Режим работы: Ежедневно с 8:00 до 20:00. Постоянный поток посетителей обеспечивается соседством с крупными сетевыми магазинами и популярными розничными точками. Идеально подходит для: Ломбарда (есть сейф), розничной торговли, торговля украшений из камня, предоставления других услуг населению, запуска нового бизнеса или стартапа. Возможна аренда всей площади или её части — возможность выбора идеального формата под ваши потребности. Станьте частью нашего торгового пространства! Свяжитесь с нами прямо сейчас!
1/2
600 000 ₽ в месяц
Универсальное помещение,  Приморский бульвар, 43в
Автозаводский район
1200 м² · 500 ₽ за м²
Арт. 99256951 В аренду сдаём торговые площади в новом и современном торговом комплексе. Торговый центр оснащён эскалаторами, хороший ремонт из качественных материалов. Весь цент оснащён системами пожарной безопасности. Предусмотрена разгрузочная зона товара. Локация удобная, легко добраться из любой точки города. Просторная парковка на улице. Звоните, организую просмотр в удобное время.
1/12
183 000 ₽ в месяц
Торговые площади,  Победы, 22
Центральный район
305 м² · 600 ₽ за м²
Предлагаю аренду помещений, в соседях ФиксПрайс. Отдельно стоящее здание. 1 этаж 305 метров с разгрузкой, на 2 этаже 90 метров, высота потолков 3 метра, свой С/У, свободная планировка с окнами, доступ 24/7. Все коммуникации центральные, электричество 80 кВт. Вместительная парковка перед Зданием, на 10 автомобилей. Располагается в жилой зоне с многоквартирными домами. Рядом магазины Весна,Магнит и Магнит косметик, Сбербанк, Пассаж-никюм т.п.
1/50
24 300 ₽ в месяц
Универсальное помещение,  Комсомольская, 84а
Центральный район
90 м² · 270 ₽ за м²
От собственника! Без комиссии! Характеристики: - 1 линия - Общая входная группа - Общая парковка - Доступ 24/7 - Общий санузел - Центральное отопление - Предчистовой ремонт - Кабинетная планировка - Офисный центр - Имеется лифт - Высота потолков 3 м - Частично с мебелью - С окнами - Инфраструктура: Банки, Магазины, Кафе/столовые - Коммунальные услуги оплачиваются отдельно - Предоставление юридического адреса Дополнительная информация: Описание По всем вопросам можете обращаться к представителю собственника: Руслан К.
1/28
203 000 ₽ в месяц
Универсальное помещение,  40 лет Победы, 30
Автозаводский район
290 м² · 700 ₽ за м²
помещение свободного назначения, 290 м² Предлагаем в аренду помещение на цокольном этаже в самом центре города, идеально подходящее для организации производства или склада. Просторное и функциональное пространство обеспечивает все условия для эффективной работы и логистики. Основные преимущества объекта: Расположение в центре города — удобный доступ и высокая транспортная проходимость. Просторное цокольное помещение — возможность организации производственных процессов или складских операций. Удобная разгрузка и погрузка — широкие въезды, грузовые лифты или площадки для техники. Хорошая транспортная доступность — рядом остановки общественного транспорта, парковки. Высокие потолки и свободная планировка — возможность адаптации под специфические требования. Надежная инженерия — системы вентиляции, электроснабжения и освещения. Возможность организации отдельного входа — для удобства сотрудников и логистики. Это оптимальное решение для бизнеса, нуждающегося в просторных производственных или складских помещениях в центральной части города. Свяжитесь с нами сегодня, чтобы получить дополнительную информацию и организовать просмотр! Руслан К.
1/21
275 000 ₽ в месяц
Универсальное помещение,  40 лет Победы, 30
Автозаводский район
250 м² · 1 100 ₽ за м²
Торговое помещение Предлагаем в аренду торговое помещение, расположенное на главной улице города — одном из самых проходимых и престижных мест. Этот объект идеально подходит для розничной торговли, салона красоты, кафе или другого коммерческого проекта, требующего высокой видимости и большого потока клиентов. Основные преимущества объекта: Отличное расположение на основной улице — высокая проходимость и максимальная видимость. Просторное торговое здание с витринными окнами — привлекает внимание прохожих и обеспечивает хорошую презентацию товаров или услуг. Удобный вход и широкие фасадные зоны — для размещения рекламных вывесок и брендирования. Развитая инфраструктура района — рядом остановки общественного транспорта, парковки, другие коммерческие объекты. Современное инженерное оснащение. Возможность адаптации под нужды арендатора — внутренняя планировка и оформление по желанию. Это отличная возможность укрепить присутствие вашего бизнеса в центре города и привлечь большое количество клиентов. Свяжитесь с нами сегодня для получения дополнительной информации и организации просмотра! Обращаться Руслан К. Добавьте это объявление в ''избранное'' - чтобы не потерять.
1/34
135 000 ₽ в месяц
Универсальное помещение,  Академика Вавилова, 60
Комсомольский район
67 м² · 2 000 ₽ за м²
От собственника! Без комиссии! Характеристики: - 1 линия - Отдельная входная группа - Своя парковка - Есть возможность разместить вывеску - Погрузка/разгрузка: Запасной вход, Главный вход - Доступ 24/7 - ХВС/ГВС - Свой санузел - Автономное отопление - Естественная вентиляция - Максимальная мощность 25 кВт - Чистовой ремонт - Отдельно стоящее здание - Без лифта - С окнами - Коммунальные услуги оплачиваются отдельно Дополнительная информация: Здание свободного назначения на первой линии с высоким пешеходным трафиком представляет собой уникальное предложение для бизнеса. Преимущества расположения - Высокая проходимость: первая линия обеспечивает постоянный поток посетителей, что идеально подходит для магазинов, кафе, ресторанов и развлекательных заведений. - Видимость и узнаваемость: здание находится на виду у большого количества потенциальных клиентов, что способствует увеличению посещаемости и узнаваемости бренда. Фасад: привлекательный внешний вид По всем вопросам можете обращаться к представителю собственника: Байрам Х. Помощь с оформлением ипотеки и покупки в лизинг. Подписывайтесь на наш профиль, чтобы узнавать о новых локациях первыми!
1/7
120 000 ₽ в месяц
Торговые площади,  Маршала Жукова, 16
Автозаводский район
150 м² · 800 ₽ за м²
Сдается универсальное помещение с отдельным входом. 1 линия, Отдельный вход, Свой с/у, Парковка, Центральное каммукации. Возможно увеличение площади до 250 кв.м. Соседние помещения - ''Магнит'' и ''Красное Белое''. Большой Автомобильный и пешеходный трафик
  • 2
  • 3
  • 4
  • 5
  1. Недвижимость в Тольятти
  2. Аренда
  3. Коммерческая
  4. 137 объявлений

Может быть полезно

Ипотека

Узнайте за 10 минут, какой кредит вам одобрят банки

Подбор риелтора

Риелтор поможет купить или продать любую недвижимость

Журнал

Что посмотреть в Новосибирске: главные достопримечательности и интересные места Что посмотреть в Новосибирске: главные достопримечательности и интересные места
Взносы в СНТ: какими они бывают и можно ли их не платить Взносы в СНТ: какими они бывают и можно ли их не платить
Как штукатурить стены своими руками: инструкция для начинающих Как штукатурить стены своими руками: инструкция для начинающих
Как украсить ёлку в 2026: идеи, тренды и советы дизайнеров Как украсить ёлку в 2026: идеи, тренды и советы дизайнеров
Гатчина: что посмотреть в городе за 1 день Гатчина: что посмотреть в городе за 1 день
Читать все статьи
Аренда коммерческой недвижимости в Тольятти
  • по районам
  • Автозаводский район
  • Комсомольский район
  • Центральный район
По районам
  • Центральный
  • Автозаводский
По субъектам области
  • Самарская область
  • Кинель-Черкассы с/пос
  • Новокуйбышевск
  • Самара
  • Жигулевск
  • Отрадный

Некоторые материалы настоящего раздела могут содержать информацию, запрещенную для детей, не достигших шести лет.

Информация о возрастных ограничениях в отношении информационной продукции, подлежащая распространению на основании норм Федерального закона «О защите детей от информации, причиняющей вред их здоровью и развитию».

О компанииСправочный центрВакансииПрайс-лист
© ООО «Н1.РУ»  Правила использования

Некоторые материалы настоящего раздела могут содержать информацию, запрещенную для детей, не достигших шести лет.

Информация о возрастных ограничениях в отношении информационной продукции, подлежащая распространению на основании норм Федерального закона «О защите детей от информации, причиняющей вред их здоровью и развитию».

Новостройки
Студии
Однокомнатные
Двухкомнатные
Трехкомнатные
Четырехкомнатные
Многокомнатные
Каталоги
Выделение цветом
Спецпредложение
Топ
Турбо
Вторичка
Однокомнатные
Комнаты
Студии
Коттеджи
Дома
Аренда недвижимости
Квартиры
Комнаты
Студии
Коттеджи
Дома
Города
Архангельск
Екатеринбург
Красноярск
Новосибирск
Омск
Пермь
Тюмень
Челябинск
Все города
Карта сайта
 Снимите коммерческую недвижимость в Тольятти - 137 объявлений в каталоге коммерческой недвижимости на N1. Средняя цена аренды или сдачи составляет 199,1 тыс ₽. Снимайте коммерческую недвижимость недорого на сайте N1.ru.