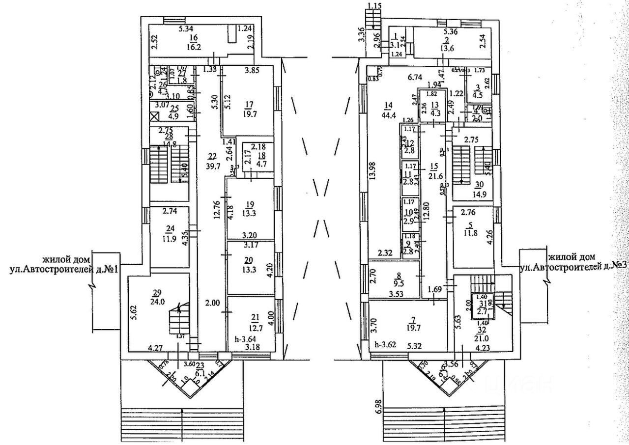
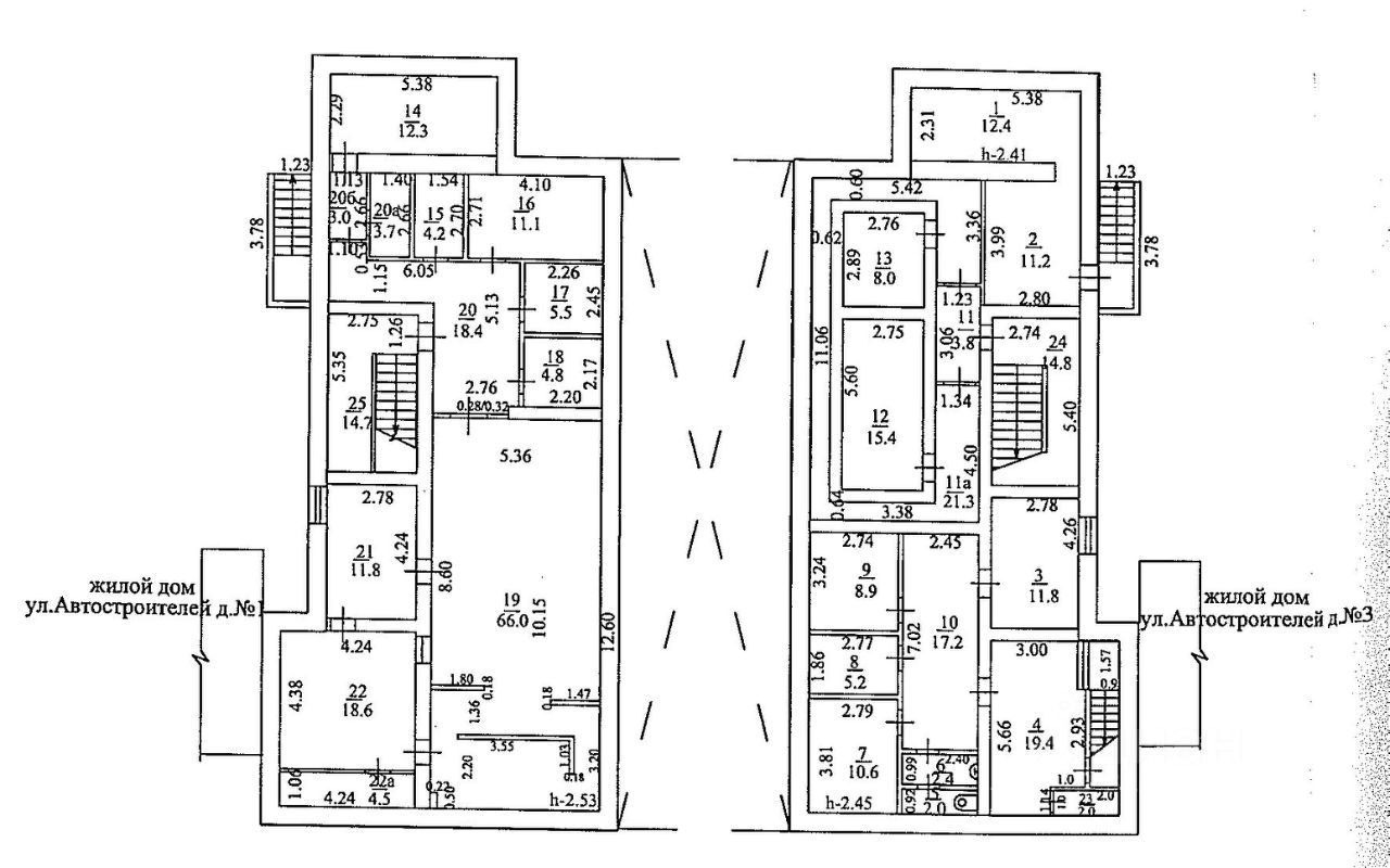
О здании (кадастровый номер 63:09:0101156:10042): •общая площадь 1 216,4 м², •этажность 2 надземных этажа + цокольный (подземный), •надежная конструкция кирпичные стены, ж/б перекрытия, •год постройки 1999.
Планировка и функциональность: •удобная кабинетная планировка, •просторный операционный зал, •кабинет руководителя с совещательной комнатой, •комната для приёма пищи, •5 санузлов по 2 на этажах и 1 в цоколе, •три входа: два с улицы Автостроителей, один с внутреннего двора.
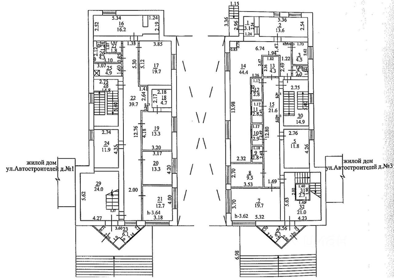
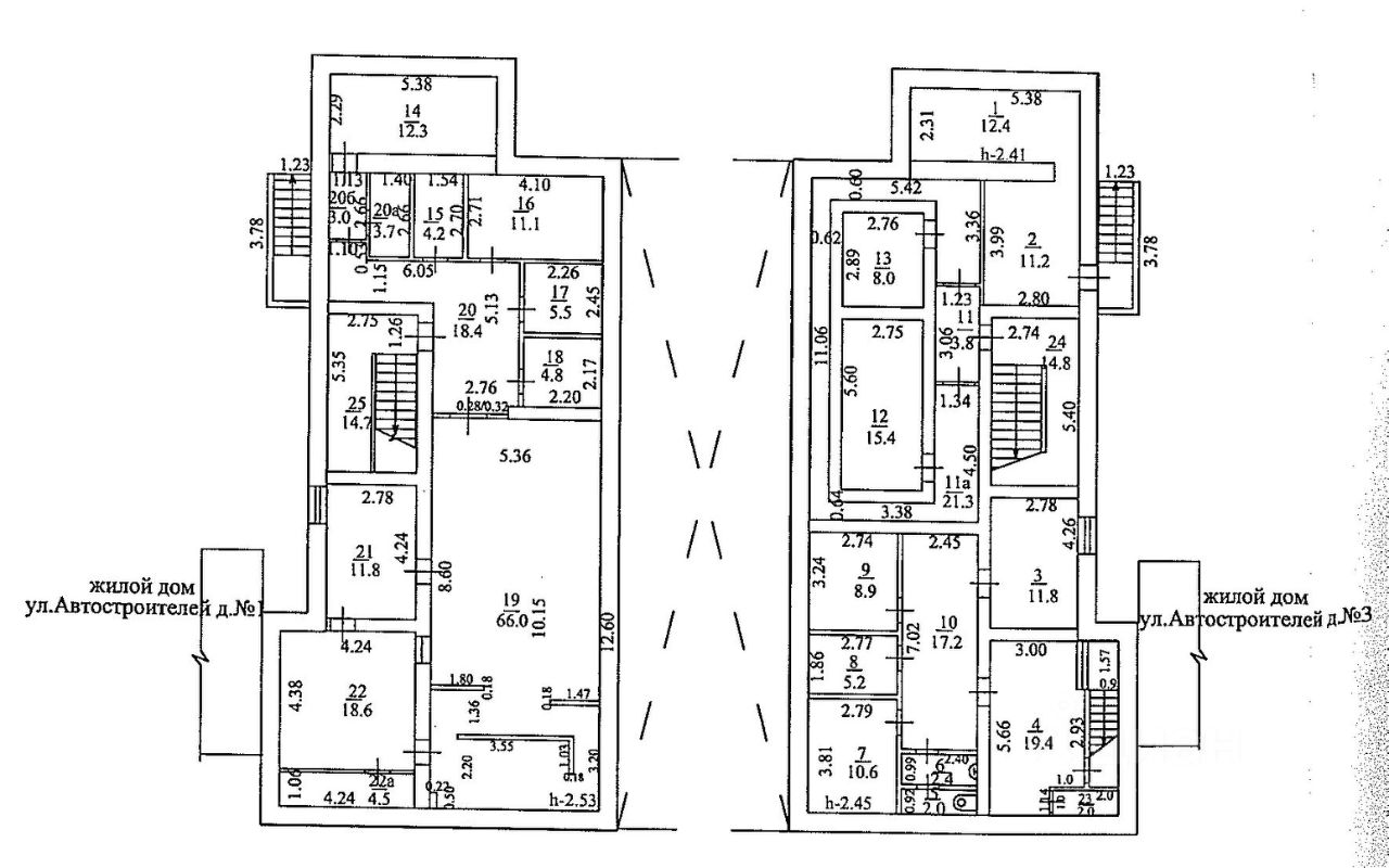
О здании (кадастровый номер 63:09:0101156:10042): •общая площадь 1 216,4 м², •этажность 2 надземных этажа + цокольный (подземный), •надежная конструкция кирпичные стены, ж/б перекрытия, •год постройки 1999.
Планировка и функциональность: •удобная кабинетная планировка, •просторный операционный зал, •кабинет руководителя с совещательной комнатой, •комната для приёма пищи, •5 санузлов по 2 на этажах и 1 в цоколе, •три входа: два с улицы Автостроителей, один с внутреннего двора.
Техническое оснащение: •электрическая мощность 200 кВт, •центральные коммуникации: водоснабжение, канализация, отопление, •приточно-вытяжная вентиляция, •система кондиционирования, •пожарная сигнализация и система видеонаблюдения.
Инфраструктура и локация: •первая линия улицы Автостроителей, •большая парковка для клиентов и сотрудников, •1 минута до остановок общественного транспорта, •удобный подъезд с Обводного и Южного шоссе, •развитая инфраструктура поблизости: магазины, ТЦ, школы, детсады, скверы и медцентры, •интенсивный пешеходный и автомобильный трафик отличное место для бизнеса.
Земельный участок в аренде.
Отличное предложение для инвесторов и компаний, ищущих представительный офис в активной деловой зоне. Идеально для офиса, банка, учебного центра, клиники, коворкинга. Прямая продажа от собственника. Собственник - юридическое лицо. Без обременений. Полная стоимость в договоре, цена указана с НДС. Ипотека подходит. Торг уместен.
Звонить в будние дни с 9:00 до 18:00 часов, в пятницу - до 17:00 часов.