Если цена в объявлении изменится, мы сразу сообщим вам об этом на электронную почту.
Нажимая «Подписаться», вы соглашаетесь с правилами.
продам дом, Славянская, 125 800 000 ₽
10 фев
Дата публикации объявления
Обн. 21 апр
Дата обновления объявления
4
Количество просмотров (+ просмотры за сегодня)
68 235 ₽/м²
Чистая продажа
Термин "Чистая продажа" означает, что в квартире никто не прописан или
есть куда выписаться и вывезти вещи. Это лучший вариант для покупателя.
Вероятность срыва сделки минимальна.
Этажей1
Площадь участка9 соток
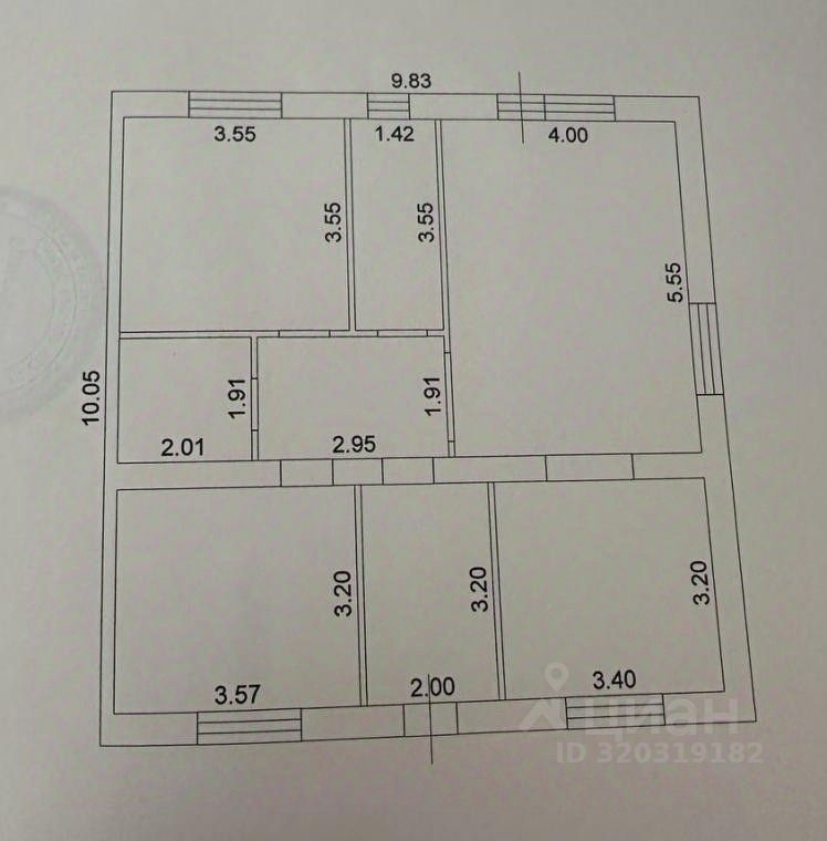
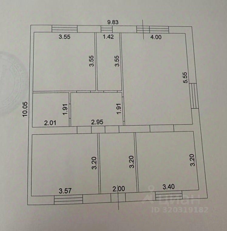
Общая площадь85 м2
ЭлектричествоЕсть
Газоснабжениецентральное
Продается одноэтажный дом с земельным участком 9 соток в Красноярском районе с.
Продается одноэтажный дом с земельным участком 9 соток в Красноярском районе с. Красный Яр
Описание дома:
- Тип строения: Дуплекс (дом на две семьи) - Площадь: Общая площадь 83 м² - Этажность: Одноэтажный - Материал стен: Газобетонный блок - Фасад: Облицован декоративным кирпичом - Окна: Пластиковые стеклопакеты - Отделка: Черновая отделка
Коммуникации заведены в дом : - Электричество - Вода - Канализация автономная (септик) - Газ
- Находится непосредственно в селе Красный Яр - Дороги зимой регулярно чистятся - Соседи отзывчивые и приятные - Развитая инфраструктура: магазины, аптеки, МФЦ, Сбербанк, школа, детский сад - Транспортная доступность: регулярный рейсовый автобус в город - Экологически чистый район, близость реки Сок
Документы подготовлены для сделки
Так же еще есть несколько домов в с. Белозерки и с. Красный Яр , звоните отвечу на все вопросы
Это предложение подойдет тем, кто ценит уютное проживание вдали от городской суеты, но при этом желает иметь доступ ко всем необходимым удобствам и услугам.