Если цена в объявлении изменится, мы сразу сообщим вам об этом на электронную почту.
Нажимая «Подписаться», вы соглашаетесь с правилами.
продам коттедж, Клары Цеткин, 1214 800 000 ₽
23 фев
Дата публикации объявления
Обн. 11 апр
Дата обновления объявления
5
Количество просмотров (+ просмотры за сегодня)
98 667 ₽/м²
Чистая продажа
Термин "Чистая продажа" означает, что в квартире никто не прописан или
есть куда выписаться и вывезти вещи. Это лучший вариант для покупателя.
Вероятность срыва сделки минимальна.
Этажей1
Площадь участка5,8 соток
Общая площадь150 м2
ЭлектричествоЕсть
Газоснабжениецентральное
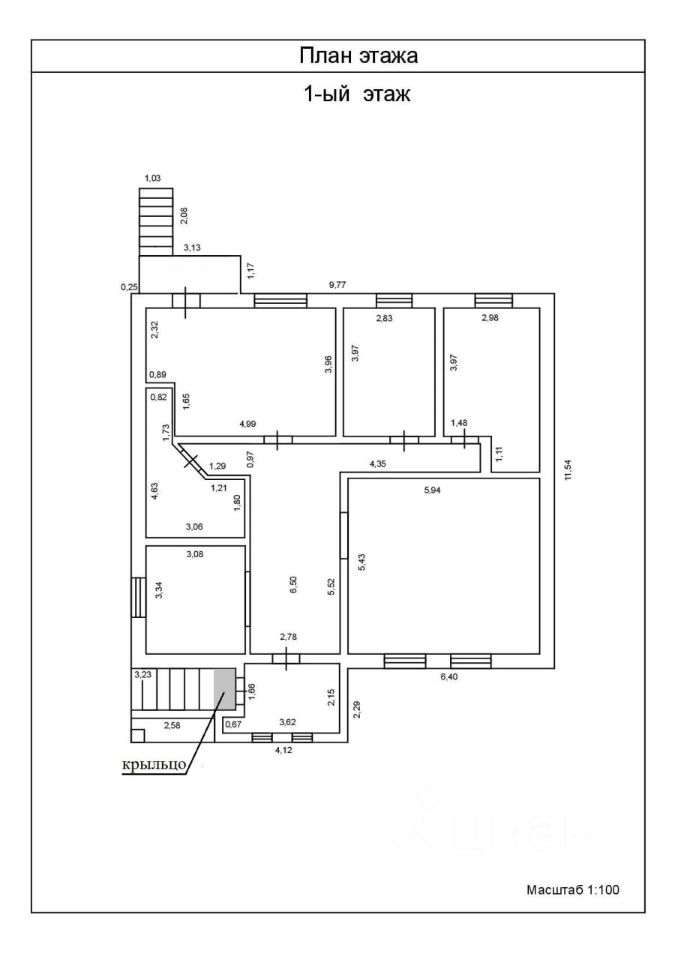
Продается уютный современный дом, без излишеств. Жилой этаж - один. Есть отапливаемый подвал - можно использовать как хоз.блок. Так же имеется гараж, баня с комнатой отдыха - идут отдельным пристроем к дому - на фото есть план.
Продается уютный современный дом, без излишеств. Жилой этаж - один. Есть отапливаемый подвал - можно использовать как хоз.блок. Так же имеется гараж, баня с комнатой отдыха - идут отдельным пристроем к дому - на фото есть план. Жилой этаж состоит из: 1) Гостиная - 32 м2 - на фото в желто-зеленом цвете 2) Кухня - 21,8 м2 - с выходом на внутренний двор домовладения 3) Холл - 10,2 м2 - компьютерная зона - можно оформить как еще одну спальню 4) Спальня 1 - 11,5 м2 - на фото не представлена - осмотр при личном посещении 5) Спальня 2 - 13,5 м2 - с небольшой гардеробной, на фото не представлена - осмотр при личном посещении 6) Коридор - 23,5 м2 - очень просторный - один блок коридора уходит на спальни, получается очень тихая зона, если в гостиной или кухне шумно 7) Сан узел - 10,3 м2 - совмещенный, с ванной и большой зоной хранения. 8) Тамбур - 6,7 м2 - отапливаемый - вся обувь и верхняя одежда находится вне жилой, чистой зоны. Банный комплекс включает в себя: сауну с душем + комната отдыха с полноценной кухней. Можно жить и зимой и летом. На участке- зимних фото не видно - но имеется газонная площадка + декоративные деревья и кустарники. Вдоль дома идет высокая грядка - для овощей и зелени.